Vinnslutillögur deiliskipulags Sauðárkrókskirkjugarðs kynntar
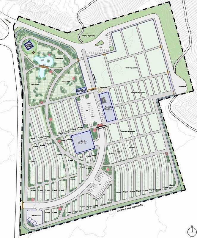
Á heimasíðu Skagafjarðar er kynning á vinnslutillögu fyrir deiliskipulag Sauðárkrókskirkjugarðs en markmið þess er að setja fram skilmála um framtíðar uppbyggingu kirkjugarðsins og skapa umgjörð fyrir trúariðkun.
Skipulagsnefnd Skagafjarðar samþykkti á fundi sínum þann 15. desember 2022 að kynna vinnslutillöguna fyrir íbúum sveitarfélagsins með kynningarmyndbandi sem birtist á heimasíðu sveitarfélagsins og fésbókarsíðu mánudaginn 19. desember 2022. Í myndbandinu eru helstu viðfangsefni skipulagsins kynnt, sýndar skýringarmyndir og sagt frá hvernig tillagan gerir ráð fyrir þróun kirkjugarðsins til framtíðar. Kynningarmyndbandið er ný nálgun sveitarfélagsins til að kynna skipulagsmál fyrir íbúum og er markmiðið að kynningin nái til sem flestra. Vinnslutillagan, skipulagsuppdráttur með greinargerð, mun jafnframt liggja frammi til kynningar á skrifstofu skipulagsfulltrúa, Skagfirðingabraut 17-21, Sauðárkróki á skrifstofutíma frá 10-12 og 12:30-15 og á heimasíðu Skagafjarðar www.skagafjordur.is.
Íbúum sveitarfélagsins og hagsmunaaðilum er gefinn kostur á að senda inn ábendingar og sjónarmið um vinnslutillöguna í síðasta lagi 9. janúar 2023 en nánari upplýsinga má finna á heimasíðu Skagafjarðar. Þar er einnig að finna kynningarmyndband um verkefnið, sjá HÉR.
