Enginn sótti um
Kaupfélag Skagfirðinga svf. sendi frá sér auglýsingu í upphafi júlímánaðar þar sem þeir könnuðu áhuga á meðal gistiþjónustuaðila í Skagafirði, á mögulegri nýtingu á efri hæð verslunarhúsnæðis félagsins á Hofsósi sem gistirými. Að sögn Ólafs Sigmarssonar framkvæmdastjóra verslunarsviðs hjá KS fengust engin viðbrögð við þeirri auglýsingu og stendur rýmið því enn autt.
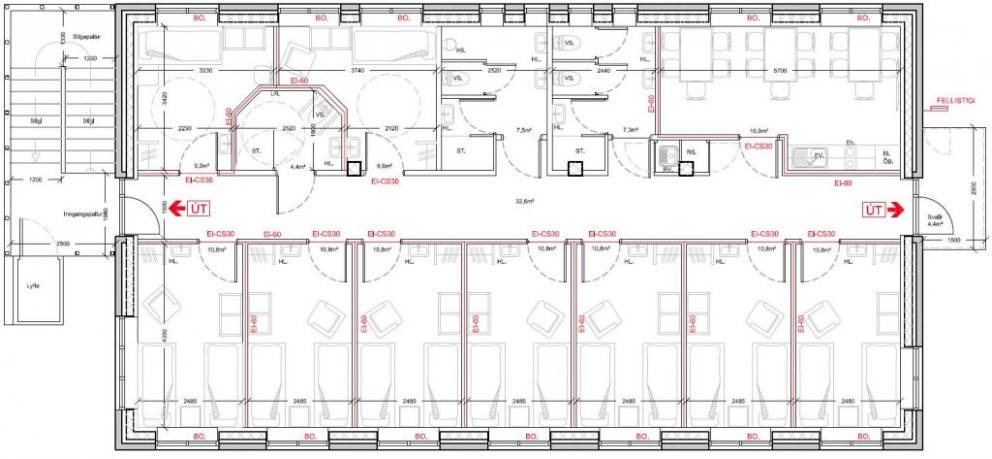
Um var að ræða níu herbergja rými ásamt snyrtingum og sameiginlegu rými. Auglýsingin var svohljóðandi: „Ef nægur áhugi reynist er mögulegt að húsnæðið yrði standsett sem slíkt næsta vetur, og gerður leigusamningur við rekstraraðila frá og með 1. júní 2015, með langtímaleigu í huga.“
